|
|
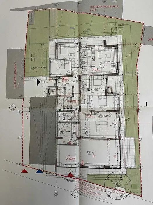
Descriere:
Stefan cel Mare, teren cu autorizatie, S+P+3+4R+5,Rsupraf tren 800 mp
Suprafata terenului este de 800 mp cu o deschidere de 25 ml
In proiect avem 16 apartamente:
Parter : 2 apartamente, Sp. Servicii 90mp
Etaj 1-3 : 9 apartamente
Etaj4 : 3 apartamente
Etaj5 : 2 apartamente
Locuri de paracare la subsol 17
Locuri de parcare la suprateran 1
Suprafete ; SCD 374 mp, SCD supraterana 1840mp, SCD (inclusiv terase) 2200mp, SCD totala (suprateran+subteran) 2360mp, SCD totala + terase 2720 mp
|
|
Stefan cel Mare, teren cu autorizatie, S+P+3+4R+5, Rsupraf tren 800 mp |
Bucuresti - Stefan cel Mare |
De Vanzare |
ID: 1756599 |
800 mp |
25 m deschidere |
1625.00 € / mp |
|
|
1,300,000 € |
 |
Florina Camberliu
Consultant imobiliar
0740.104.549
|
|