|
|
|
|
Descriere:
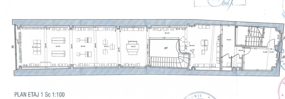
In Centrul Istoric zona strada Lipscani de inchiriat etaj 1 intr-o cladire comerciala consolidata in anul 2010. Spatiile au intrare separata din strada si sunt frumos finisate, suprafata totala utila este de 140 mp . Spatiile sunt Open space si foarte bine iluminate natural. Pretul creste anual cu 10% si indicele de inflatie european .Se preteaza pt Birouri , Centru de infrumusetare , etc
|
|
Zona Centrul Isoric Etaj 1 supr 140mp cu intrare separata din strada |
Bucuresti - Centrul Istoric (Strada Lipscani) |
De Inchiriat |
ID: 2460111 |
140.00 mp |
1 / P |
m deschidere |
|
|
1,500 € / lună + 21% TVA |
 |
Ioan Lungu
Manager / Broker imobiliar
0744.492.336
|
|